Casa do jardim ensolarado

CASA DO JARDIM ENSOLARADO
Luz que se move com o dia
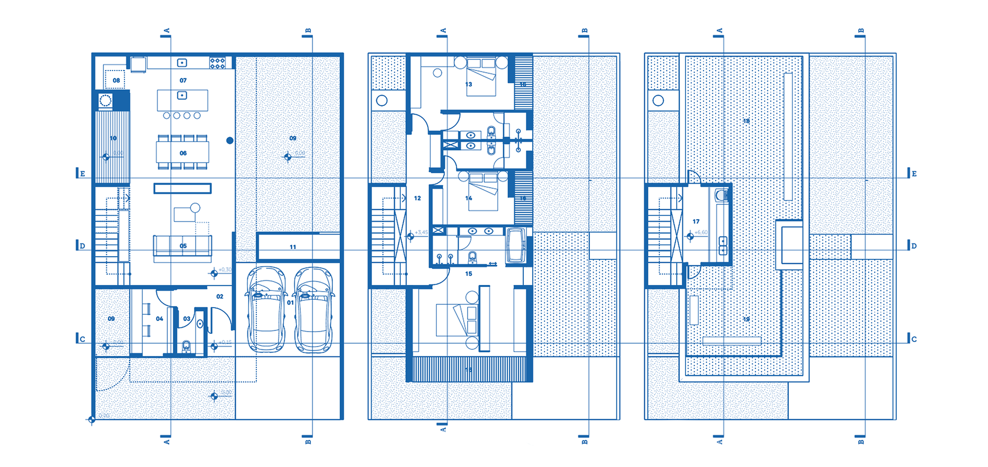
Esta é a história de uma residência que se constitui a partir do vazio. 
O vazio é a matéria prima do espaço, seja ele interior ou exterior. Ao articular o dentro e o fora, a casa ganha em amplitude e riqueza espaciais. Por isso, decidimos ocupar o terreno com uma construção de 240m², e fazer das sobras – o vazio – um jardim ensolarado: um verdadeiro quintal, para que possa ser aproveitado com vida.

Arquitetura:
Ateliê 01 + Arq. Elisa Bahiense

Estrutura e Instalações Prediais:
Eng. Thiago Fonseca

Construção:
Antonio Figueiredo

Gestão de Obra:
Ateliê 01

Área Construída:
240m²

Local:
Curitiba, PR

Ano:
2019 - 2021
Back to Top