EDIFÍCIO BOA VISTA
UM EDIFÍCIO FAMILIAR
      
    
      
    
      
    
      
    
      
    
      
    
      
    
      
    
      
    
      
    O projeto parte da ideia de que cada membro da família habita um pavimento.
Utilizamos a terra da fundação para aterrar um jardim, que faz a frente urbana deste edifício em Curitiba.
Atrás desse volume está um estacionamento em subsolo aflorado, com permeabilidade para um pomar aos fundos.
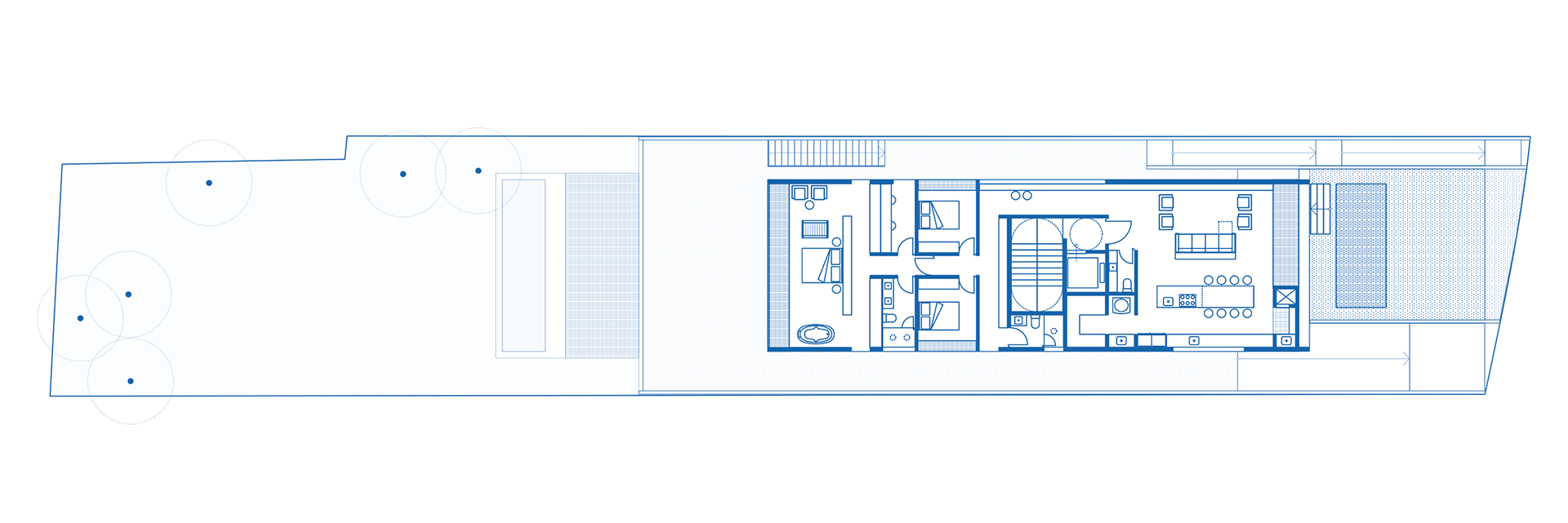
O núcleo de circulação vertical é central na planta e separa os usos sociais dos usos privados, com vistas para todas as direções; não há vizinhos altos por aqui. O terraço de cobertura é um mirante. E há, ainda, um bunker no verdadeiro subsolo da construção.
Utilizamos a terra da fundação para aterrar um jardim, que faz a frente urbana deste edifício em Curitiba.
Atrás desse volume está um estacionamento em subsolo aflorado, com permeabilidade para um pomar aos fundos.
O núcleo de circulação vertical é central na planta e separa os usos sociais dos usos privados, com vistas para todas as direções; não há vizinhos altos por aqui. O terraço de cobertura é um mirante. E há, ainda, um bunker no verdadeiro subsolo da construção.
Projeto Arquitetônico
Ateliê 01
Projeto Estrutural
Filipe Sanches
Projetos de Instalações Prediais
Rafael Falkoski
Imagens:
Möbius
Área do Lote:
799,30m²
Área Total Construída:
1.039,75m²
Área Coberta Privativa:
779,84m²
Unidades:
3
Vagas:
6