VOXEL
Um projeto que preza pela individualidade de cada unidade.
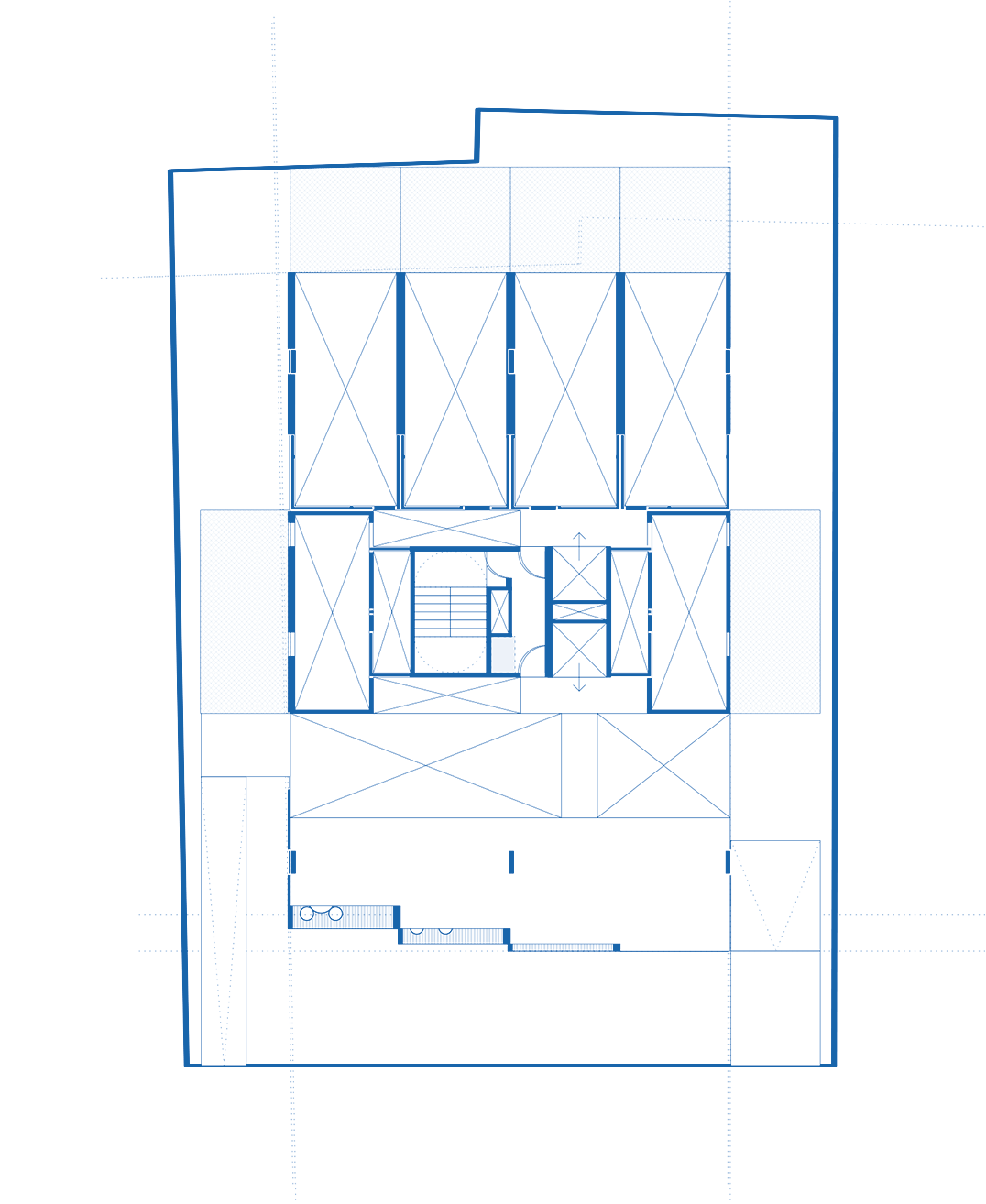
Partindo de uma implantação em caixa, o projeto centraliza a circulação vertical e divide as unidades em frontais e traseiras. Com um comércio térreo, a fachada para a rua se torna um mostruário de individualidades, havendo uma segmentação propositada em um grid que avança e recua em função das vistas.
Partindo de uma implantação em caixa, o projeto centraliza a circulação vertical e divide as unidades em frontais e traseiras. Com um comércio térreo, a fachada para a rua se torna um mostruário de individualidades, havendo uma segmentação propositada em um grid que avança e recua em função das vistas.
Projeto Arquitetônico:
Ateliê 01 + Heinrich Froese Neto
Imagens:
Möbius
Área do Lote:
673,29m²
Área Total Construída:
2677,10m²
Área Coberta Privativa:
1532,14m²
Unidades:
56
Vagas:
22
673,29m²
Área Total Construída:
2677,10m²
Área Coberta Privativa:
1532,14m²
Unidades:
56
Vagas:
22
Ano:
2024